Geberit Badplanung Badezimmer kostenlos planen lassen
Sie planen aktuell einen Neubau oder möchten Ihr Bad sanieren? Die Geberit Badprofis unterstützen Privatkunden auf Ihrem persönlichen Weg zum Traumbad. Lassen Sie Ihr Badezimmer jetzt kostenlos planen!
Hinweis zur Beratungskapazität
Aufgrund aktuell ausgeschöpfter Kapazitäten kann unsere Badberatung derzeit keine persönlichen Beratungsgespräche für eine professionelle Badberatung anbieten.
Wir arbeiten bereits daran, unser Angebot wieder wie gewohnt zur Verfügung zu stellen, und bitten in der Zwischenzeit um Ihr Verständnis.
Vielen Dank für Ihre Geduld!
Eine sorgfältige Planung eines neuen Badezimmers ist entscheidend, um Funktionalität, Komfort und Ästhetik zu vereinen. Lassen Sie sich bei der Planung von den Badplanern von Geberit kostenlos unterstützen.
Unser Planungsteam geht auf Ihre räumlichen Gegebenheiten ein und berät Sie passend zu Ihren ganz individuellen Bedürfnissen und Ihrem Budget.
Unsere professionelle Badplanung für Privatkunden beinhaltet:
- Kostenlose Beratung und Planung Ihres neuen Badezimmers
- Übergabe sämtlicher Pläne und Unterlagen
- 3D-Visualisierung Ihres Badezimmers
- Empfehlungen für die Umsetzung Ihres Traumbades mit einem Fachhandwerker

So läuft Ihre persönliche Badplanung ab In 3 Schritten zum Traumbad

1. Telefonisches Erstgespräch
In diesem Telefongespräch ermitteln wir Ihre persönlichen Bedürfnisse und machen uns ein Bild von Ihren Räumlichkeiten.

2. Vorstellung der Grundrissplanung
Wir erstellen für Sie eine bedarfsgerechte 3D-Badplanung und stellen Ihnen diese via Videotelefonie vor.

3. Bereitstellung der Planungsunterlagen
Sie erhalten von uns alle relevanten Planungsunterlagen, um Ihr Badprojekt gemeinsam mit einem Fachhandwerker angehen zu können.
Ihr Badprojekt – unsere Planung Weil es Ihr Bad werden soll
Wir unterstützen Sie bei der Badsanierung oder Planung eines neuen Bades. Um Ihr Bad möglichst realistisch visualisieren zu können, benötigen wir mehr Informationen über Ihre baulichen Gegebenheiten. Auf der Grundlage Ihrer Angaben liefern wir Ihnen Ideen für eine optimale Badgestaltung und Einrichtung.
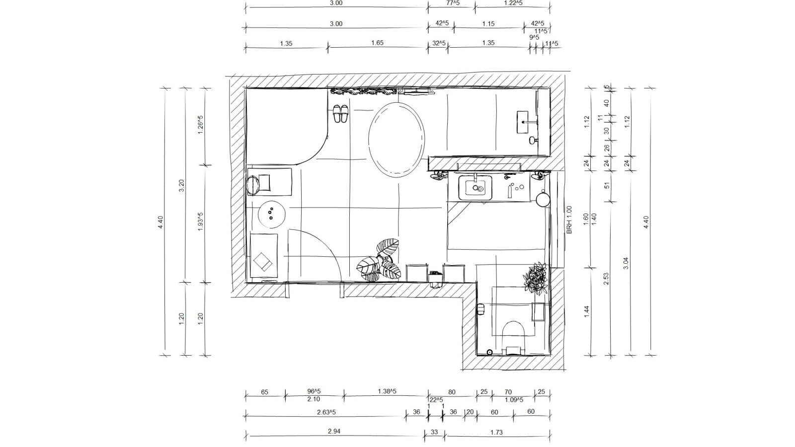
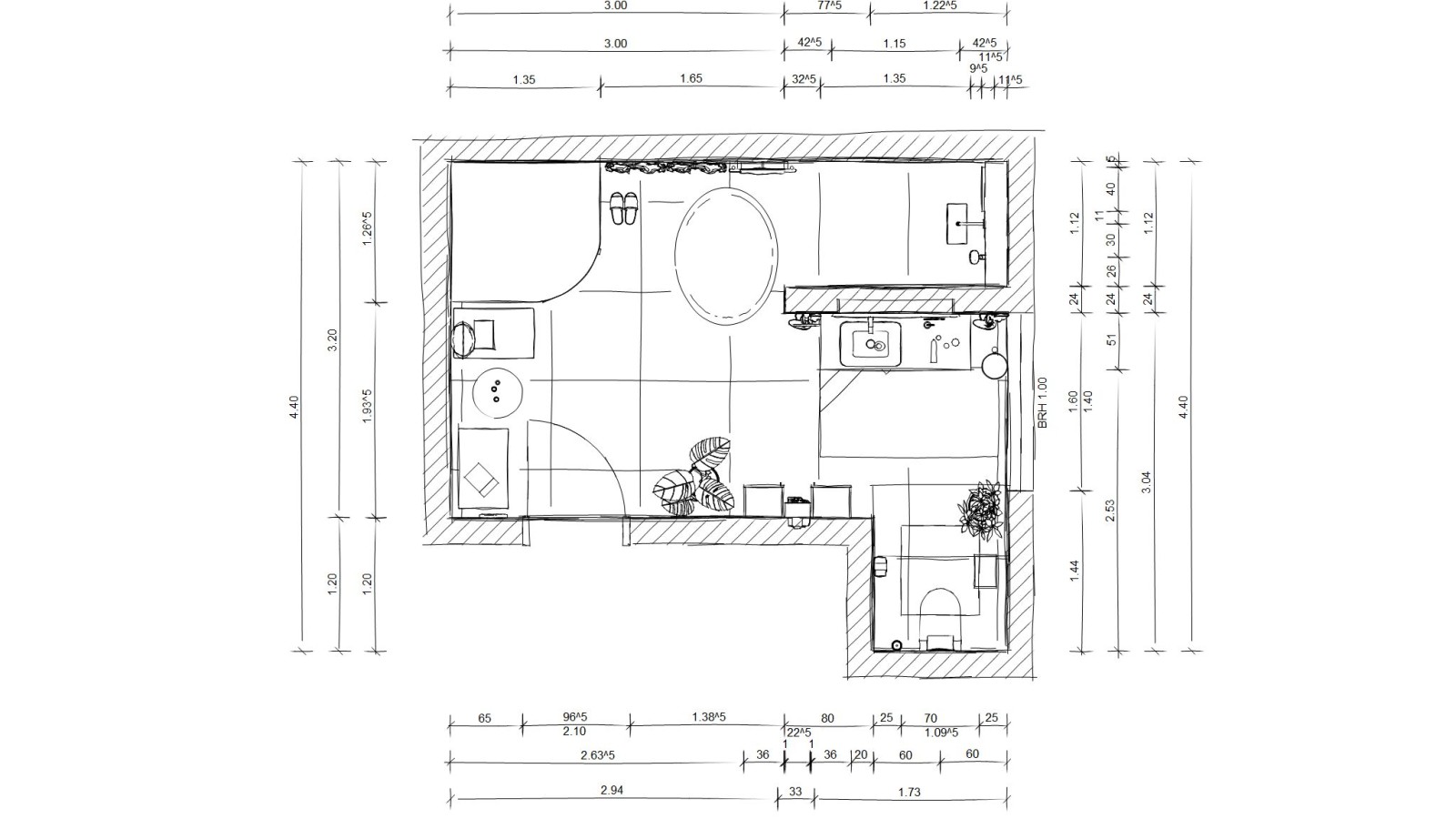
Benötigte Unterlagen
- Grundriss Ihres Badezimmers
- Aktuelle Bilder Ihres Bades (nur bei Renovierung)
Im Zuge der Terminvereinbarung bitten wir Sie, Ihre vorhandenen Unterlagen hochzuladen. Sie haben keinen Grundriss? Nutzen Sie einfach unsere Vorlage. Scannen Sie diese ein und laden Sie sie hoch:

Projekte unserer Kunden So visualisieren wir Ihr Badezimmer

Waschplatz mit Doppelwaschtisch: Für Paare oder Familien ist ein Doppelwaschtisch ideal. So können zwei Personen den Waschplatz gleichzeitig nutzen.

Privatsphäre im Bad: Mit durchdachter Planung sorgen wir für geschützte Rückzugsorte – ganz nach Ihren persönlichen Bedürfnissen und räumlichen Gegebenheiten.

Bad mit Dachschräge: Bei Badezimmern mit Dachschräge wird die Raumaufteilung gut durchdacht, da die Schräge die nutzbare Fläche reduziert.

Besondere Anforderungen und Wünsche: Ob pflegeleicht, barrierearm oder mit viel Stauraum – wir planen Ihr Bad individuell nach Ihren Bedürfnissen.

Moderne Walk-In Dusche: Je nach vorhandenem Platz und Designwünschen, planen wir für Sie eine moderne Dusche, Badewanne oder beides ein.

Planung eines Gäste-WCs: Die Badprofis von Geberit wissen, wie man den Platz bei einem kleinen Grundriss optimiert.
Badezimmer planen lassen und Geschenk sichern






Sobald Sie Ihr neues Bad mit einem Fachhandwerker umgesetzt haben, können Sie sich Ihr persönliches Geschenk sichern und entspannte Stunden mit einem exklusiven
Geberit Badset genießen.
Inspiration für Ihr neues Bad mit Geberit Produkten

Waschplatz
Die hochwertigen Waschplatzprodukte von Geberit passen in jedes Bad. Entdecken Sie unsere Waschtische, Badezimmermöbel, Spiegel und Accessoires.

WCs & Urinale
Entdecken Sie die Vielfalt an spülrandlosen Toiletten, Dusch-WCs und Urinalen mit starker Spülleistung, leicht zu reinigenden Oberflächen und vielen weiteren nützlichen Funktionen. Für jeden Geschmack und Badezimmerstil bieten wir zudem hochwertige Betätigungsplatten.

Dusche & Badewannenabläufe
Verwandeln Sie Ihr Zuhause in eine persönliche Wohlfühl-Oase, ganz nach Ihrem Geschmack. Geberit bietet Ihnen dafür perfekt abgestimmte Lösungen für Dusche und Badewannenabläufe.
Häufige Fragen zur Geberit Badplanung
Wie kann ich die Planung meines Badezimmers umsetzen lassen?
Für die Badplanung benötigen wir den Grundriss und die von Ihnen bereitgestellten Informationen zu Ihrem Badprojekt. So können wir mit den Informationen aus dem telefonischen Erstgespräch die Planung durchführen. Nach der Präsentation der Badplanung über Microsoft Teams erhalten Sie die Planungsunterlagen per Post. Die Badplanung und auch die Unterlagen werden Ihnen von Geberit kostenlos zur Verfügung gestellt.
Geberit kann Ihr Badezimmer jedoch nicht baulich umsetzen. Dazu benötigen Sie einen Installateur. Gehen Sie daher mit Ihren Unterlagen und der Artikelliste zu Ihrem Installateur und holen Sie ein Angebot ein. Er wird Sie im Bezug auf die weiteren Schritte beraten.
Wie viele Bäder kann ich mit der professionellen Badplanung umsetzen lassen?
Pro Kunde wird eine Planung für ein Hauptbad und, falls vorhanden, ein Gästebad umgesetzt. Im Erstgespräch können jedoch auf Nachfrage auch individuelle Regelungen getroffen werden.
Die professionelle Badplanung richtet sich an Privatkunden. Installateure und Planer wenden sich bei Fragen bitte an ihren Geberit Ansprechpartner im Außendienst.
Ist eine Prüfung der Realisierbarkeit durch den Sanitär-Installateur notwendig?
Die Badplanung zeigt Gestaltungsvorschläge auf Basis der Nutzerangaben. Sie stellt keine technisch belastbare oder rechtsverbindliche Planungsvorlage dar. Die Badplanung einschließlich der Prüfung der Realisierbarkeit der Gestaltungsvorschläge ist durch die ausführenden Gewerke vorzunehmen. Geberit übernimmt keine Haftung für die weitere Verwendung. Die professionelle Geberit Badplanung ermöglicht die Einbindung von Fremdprodukten, eine Produktberatung kann jedoch nur zu Geberit Produkten erfolgen.
Reicht ein handgefertigter Grundriss für die kostenlose Badplanung?
In den meisten Fällen genügt ein handgezeichneter Grundriss, um Ihr Badezimmer von Geberit planen zu lassen. Bitte achten Sie darauf, dass alle Maße eingetragen sind (Wandlängen, Wandstärken, Fenster, Türen, Kniestöcke, Raumhöhen, Dachschrägen usw.). Alternativ stellen wir Ihnen eine Grundrissvorlage zur Verfügung.
Werden die Preise mitgeteilt? Kann Geberit alle in der Badplanung gezeigten Produkte anbieten?
Aufgrund des dreistufigen Vertriebsweges verkauft Geberit die Produkte nur an den Sanitärfachgroßhandel. Deshalb können wir keine konkreten Preise nennen. Privatkunden können die genauen Preise beim Fachhandel erfragen.
Geberit hat viele Badprodukte im Portfolio, weshalb WCs, Waschtische, Badmöbel etc. angeboten werden können. Darüber hinaus bieten wir auch Unterputz-Elemente, Trinkwasser- und Abwasserleitungen an. Dusch- und Wannenarmaturen sowie Fliesen haben wir jedoch nicht im Lieferprogramm.
Zu welchen Bereichen im Bad kann mich die Geberit Badplanung beraten?
Das Beratungsteam von Geberit erarbeitet anhand Ihrer Fotos, des Badgrundrisses und Ihrer individuellen Bedürfnisse einen Vorschlag für Ihr neues Badezimmer. Die Planungen basieren auf den Budget-Angaben aus der Anmeldung. Diese beinhalten die Kosten für den Umbau bzw. Neubau des Bades.
Wir visualisieren Ihr Badezimmer und liefern Ihnen Gestaltungsideen für den Dusch- und/oder Badewannenbereich, den Waschplatz und die Gestaltung des WC-Bereichs. Unser Team stellt Ihnen auch Badmöbel mit viel praktischem Stauraum vor. Sie erhalten von uns weitere Informationen zur optimalen Raumaufteilung und Tipps, wie Sie Ihr neues Bad funktional und schön gestalten können.
Wie kann ich mich auf den Badberatungstermin am besten vorbereiten?
Unsere Planungsprofis planen Ihr neues Bad kostenlos und führen Sie durch den Beratungstermin. Nutzen Sie die Zeit vor dem Termin, um sich rund um das Thema Badplanung zu informieren. Nutzen Sie unsere kostenlosen Tools zur Inspiration:
3D-Badplaner
Inspiration-Tool
Produktfinder
Je klarer Ihre Vorstellungen und Anforderungen an Ihr neues Badezimmer sind, desto besser lässt es sich nach Ihren Wünschen realisieren.
Wie lange dauert das Erst- und Zweitgespräch der Geberit Badplanung? Wie läuft es ab?
Das telefonische Erstgespräch umfasst einen Fragebogen mit Fragen zu Ihrer Person, zum Grundriss und zu den zu planenden Produkten und deren Gestaltung. Es dauert ca. 30 bis 45 Minuten.
Das zweite Gespräch findet digital über Microsoft Teams statt und nimmt 30 bis 60 Minuten in Anspruch. Im Teams-Besprechungsraum gehen wir mit Ihnen durch die 3D-Planung und tauschen uns über die verschiedenen Bereiche des Bades aus. Bitte beachten Sie, dass es sich hierbei nicht um eine Beratung vor Ort handelt. Die Beratung erfolgt ausschließlich telefonisch und digital.
Geberit Bad-Magazin Jetzt herunterladen oder bestellen
- Finden Sie viele weitere Ideen und Inspirationen für Ihr Traumbad
- Alle Geberit Badserien im Überblick
- Große Bildstrecken machen Lust auf kreative Badeinrichtungen
- Produktübersichten dienen als praktische Planungshilfe im Detail
Sie können sich das kostenlose Geberit Bad-Magazin als gedrucktes Exemplar bequem nach Hause bestellen.
Alle Infos zur Reinigung und Pflege der Geberit Sanitärprodukte und Badausstattungen finden Sie in der Broschüre.
